Aprašymas
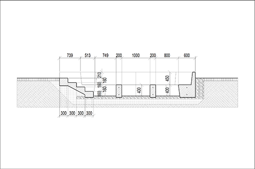
Prabangus daugiafunkcinis betoninis į žemę įleistas rato formos suolas su laužaviete ir centriniais laipteliais
Atraskite aukščiausios klasės lauko poilsį su šiuo prabangiu daugiafunkciniu betoniniu lauko baldu. Ši išskirtinė konstrukcija pasižymi integruotais kelių lygių suoliukais, užtikrinančiais maksimalų komfortą ir erdvę didesnei kompanijai, bei centriniu laužavietės židiniu, idealiai tinkančiu jaukiems vakarams po atviru dangumi. Įmontuoti laipteliai suteikia patogumo ir elegancijos, leidžiant lengvai patekti į poilsio zoną. Pagamintas iš aukštos kokybės betono, šis elementas taps pagrindiniu jūsų sklypo erdvės ar kiemo akcentu, kviečiančiu mėgautis gamta, bendrauti ir kurti nepamirštamus prisiminimus. Ilgaamžis, atsparus ir lengvai prižiūrimas.
Puikiai tinka:
- privačių namų kiemams ir terasoms
- poilsio zonoms sodybose
- parkams, viešosioms erdvėms, rekreacinėms zonoms
- moderniems kraštovaizdžio projektams
- betono zona skirta dujinio ugniakūro įrengimui ir gali būti koreguojama pagal poreikį.
Privalumai:
- šiuolaikiškas, minimalistinis dizainas
- laipteliai ir erdvūs suoliukai užtikrina patogų patekimą ir sėdėjimą, net ir didesnėms grupėms.
- tvirta ir ilgaamžė betoninė konstrukcija
- atsparus šalčiui, drėgmei ir karščiui
- saugi ir patogi susibūrimo vieta
- lengvai pritaikomas skirtingiems projektams
- Nereikalauja dažymo ar specialių priežiūros priemonių, todėl išlaikymas paprastas ir ekonomiškas.
Kitos savybės:
- Betonas gali būti pigmentuojamas, lauko baldas gali būti pagamintas ne pilkos, o kliento pageidaujamos spalvos.
- Suoliukų sėdimoji dalis (bei atlošas) gali būti apipavidalinti pilnavidurėmis medžio/plastiko kompozito lentomis arba jūsų pageidaujama natūralaus medžio lentų apdaila, be spalva.
.






